Neighborhood Meeting Summary – February 2026
Featuring City Council members Wil Brasington and Tina Belge
Our most recent neighborhood association meeting covered critical updates ranging from new townhomes to city-wide transit improvements and local public safety concerns.
Greenville Journal article on Felsie Harris

To begin the meeting, we mentioned the Greenville Journal article about Felsie Harris, who has served as president of the Haynie-Sirrine Neighborhood Association for 28 years.
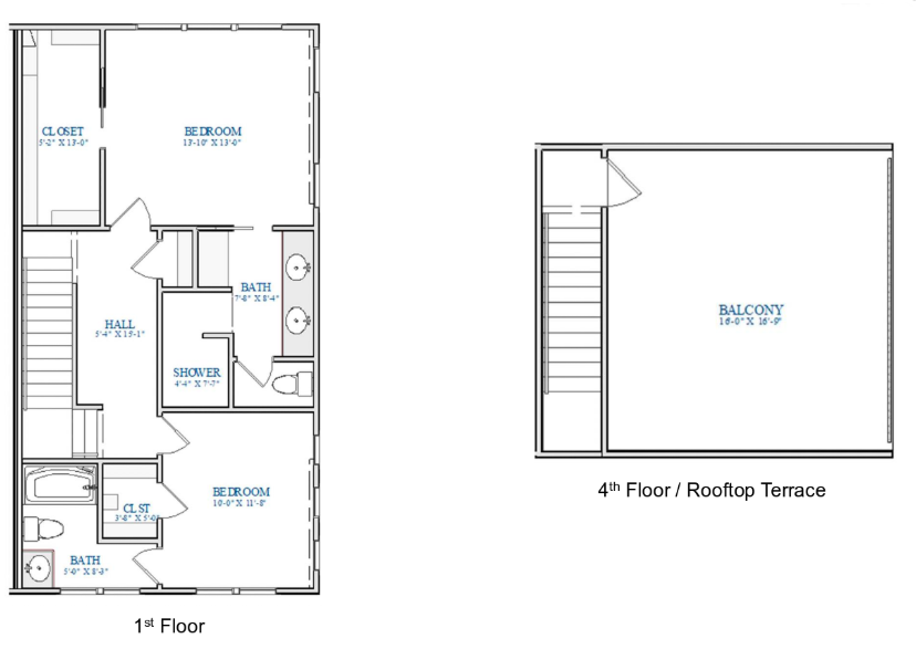
New Development: The Enclave Townhomes
Speaker: Bob Barreto, Haynie Howe Venture, LLC
Bob Barreto presented plans for The Enclave, a new residential project of six townhomes located at 105 Howe Street. The first three townhomes will be approximately 1,800 square feet with 3 bedrooms and 3.5 bathrooms.





Public Safety & Neighborhood Report
Presented by: City of Greenville Police and Fire Departments
During the department reports, several specific issues within our neighborhood were brought to the floor:
- Springer St Tunnel: Residents expressed frustration over recurring trash in the tunnel. It was noted that one dedicated neighbor has already cleaned the area three times.
- Illegal Dumping: Reports were made regarding illegally dumped tires; fortunately, the city has already cleaned these up.
- Trucks and Jeeps Tearing Up City Property: Residents reported that Jeeps and pickup trucks have been "mudding" on the city-owned property near Church St and the Springer St Tunnel.





City Council Update
Speaker: City Council Members Wil Brasington and Tina Belge
Council Members Wil Brasington and Tina Belge shared key data and strategic goals from the recent City Council retreat.









- Decreasing Crime: Despite a growing population, the rate of crimes has continued to decrease, down 65% per capita in 2025 (32 incidents per 1000 residents) compared to 2000 (94 incidents per 1000 residents).
- Affordable Housing Goals: The city is pushing toward the GVL2040 goal of reserving 10% of all new housing for income-eligible households, backed by a projected $63M investment through FY26.
- Greenlink Improvements: 30-minute service is launching on the 502, 507, 509, and 602 routes, and all busses are being outfitted with sensors for transit signal priority, increasing reliability. In 2025, 46 bus stops have been upgraded, surpassing 100 since beginning in 2021. Federal funding has been secured to acquire busses for airport service, which should laun
Greenlink 2026 Transit Development Plan
HSNA Vice President and GTA board member John Slipke presented the 2026 Greenlink Transit Development Plan and encouraged residents to take the Greenlink survey.



County Square Update
HSNA Vice President John Slipke gave an update on the County Square development, noting that the infrastructure work has been completed. He encouraged residents to use the newly opened roads.

Proposed Mural
The meeting concluded with a community-led discussion regarding the Springer St tunnel mural project. Residents suggested that the mural should honor President Felsie Harris, for her nearly three decades of service to the neighborhood, or Reverend Jesse Jackson, a civil rights icon who grew up in Haynie-Sirrine and recently passed away.